Pacific Pines Properties for Sale

powered by Open2view.com

7 Coach Road

North Coast
4
2
N/A
N/Asqm
N/Asqm
7 Coach Road North Coast
proudly marketed by
Tate Brownlee Real Estate
Where Quiet Luxury Meets Hinterland Calm
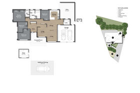
Set within one of Terranora's most loved cul-de-sacs, this single-level family haven rests on a generous quarter-acre - a place where the world slows down, the breeze rolls in across the valley, and every day feels just a little more peaceful. Terranora is known for its small-village charm, elevated breezes and panoramic green outlooks, all while sitting just minutes from Tweed Heads, pristine beaches, top schools and the popular Pavilions Marketplace. Locals don't just move here - they stay. And when you arrive at Coach Road, it's easy to understand why. Step inside and the home instantly feels calm and beautifully grounded. Solid brick and tile construction offers timeless reliability, while ducted air-conditioning and gentle ceiling fans keep every season comfortable. Multiple living zones spill across a practical single-level layout, creating an easy flow for families of all ages. The master suite is quietly tucked away, complete with its own ensuite and twin built-in robes - a peaceful retreat at the end of each day. Three additional bedrooms, all with built-ins and soft carpeting, make room for growing families or visiting guests. At the heart of the home, the kitchen stands ready for every meal and moment, appointed with a Westinghouse double oven and excellent bench space. From here, the home opens effortlessly to the covered outdoor entertaining area - a place to unwind, share dinners, celebrate milestones. Outside, the quarter acre block gives you room to breathe. Children and pets can explore the backyard, a garden shed is ready for projects and storage, and the extra caravan/trailer bay makes adventures easy. Solar power (5kW) helps keep living affordable, while the renovated laundry adds a fresh modern touch. Homes like this are treasured - peaceful, practical, and positioned in one of Terranora's most tightly held pockets. 7 Coach Road isn't just a house. It's a lifestyle grounded in space, calm and community - a place you'll be proud to call home. @ Tate Brownlee Real Estate, we open the doors to your future! Key Features: • Generous quarter-acre block • Elevated block with valley views • Valley breezes and hinterland outlooks • Covered outdoor entertaining area with beautiful valley views • Ducted air-conditioning • Central kitchen with Westinghouse double oven • Renovated laundry with modern finishes • Spacious backyard • 5kW solar system • Garden shed for storage and hobbies • 2 minute drive to The Pavillions Marketplace with Tavern, Café and much more • 17 minute drive to Tweed City Shopping Centre • 17 minute drive to Gold Coast International Airport • 17 minute drive to Coolangatta beaches • 18 minute drive to Tweed Valley Hospital
Question
Location
Upload by Jacinta Harry & Ali Wright
Tweed Coast
This property was photographed by
Jacinta Harry & Ali Wright
0404 836 192